Arkiv
Blåsut Höjd, Rostvägen
Det ska byggas 24 lägenheter fördelade på sex hus i en skogsdunge på en höjd mellan Rostvägen 1 och 9 på fastigheten Blåsut 2:18. Det skrev jag i en av den gångna veckans blogginlägg. (Se “Oj, är det skog kvar i Blåsut?”.) Tomten Blåsut 2:18 är enligt Lantmäteriet 5.336 kvm stor och utgörs idag av obebyggd naturmark med inslag av berg i dagen.
Bygglov söktes den 19 juni av Babak Salahi Tabrizi (jag uppger namnet eftersom TTELA redan har gjort det), som är bosatt i Öjersjö i Partille kommun. Datum för den planerade byggstarten är den 1 oktober. På frågan om byggherren var en annan än sökanden så var svaret “nej”, men i TTELA uppges att husen kommer att utvecklas av Nova Nord AB. Babak Salahi Tabrizi är VD för företaget.
Bygglovsansökan lämnades till Vänersborgs kommun några dagar efter att byggnadsförvaltningen gett marklov på fastigheten, den 14 juni. Marklovet avser:
“Ansökan avser flytt av väg som omfattas av servitut för att möjliggöra en ändring av befintligt vägservitut som sker i dialog med lantmäteriet.”
Byggnadsförvaltningen konstaterar att den sökta åtgärden följer detaljplanen, området är avsett för bostadsändamål. Även hantering av dagvatten har redovisats och bedöms som tillfredsställande. Det har också gjorts en naturvårdsinventering. (Se “Oj, är det skog kvar i Blåsut?”.)
Ansökan om marklov skickades in av företaget Blåsut Utveckling AB. Det är ett företag som registrerades 2022 och har samma gatuadress som dess ordförande och VD, dvs Babak Salahi Tabrizi. Det förvånar något att Blåsut Utveckling AB har en c/o-adress som uppger att företaget Basus Holding AB finns på denna adress. Basus Holding ger dock inga träffar på Google… Blåsut Utvecklings bokslut för 2023, som avser 18 månader, visar att en förlust gjordes på 18.000 kr men att tillgångarna uppgick till ungefär 4,4 milj kr.
Det kan alltså konstateras att det finns flera aktörer inblandade. Babak Salahi Tabrizi har som enskild person sökt bygglov, marklovet gavs till Blåsut Utveckling AB och i TTELA uppges Nova Nord AB stå för bygget. Babak Salahi Tabrizi är VD i båda företagen. Basus Holding AB tycks inte finnas mer än som c/o på en adress.
När man läser om Babak Salahi Tabrizi så stöter man snabbt på ytterligare en intressant “organisation” – Bostadsrättsföreningen Blåsut Höjd. Föreningen registrerades så sent som 8 juli i år. Babak Salahi är ordförande och två av hans grannar i Öjersjö är styrelseledamöter. En av dem har koppling till Vänersborg.
Länsförsäkringar Fastighetsförmedling informerar på sin hemsida (klicka här) om projektet på “Blåsut Höjd”. Fastighetsförmedlingen uppmanar:
“Kontakta oss redan idag för att ta del av mer information kring projektet och lämna en intresseanmälan.”
Det tycks enligt “reklamen” bli något alldeles extra att bo på den antagligen snart helt bortsprängda höjden på Rostvägen:
“Här bor du och dina blivande grannar i sex stycken fyrbohus med totalt 24 lägenheter, jämnt fördelat mellan tre rum och kök (3 rok) och fyra rum och kök (4 rok). Oavsett om du söker mer utrymme för familjen eller föredrar en mer kompakt layout, kan vi erbjuda något som passar alla.”
Länsförsäkringar Fastighetsförmedling har mycket mer positivt att säga om läget.
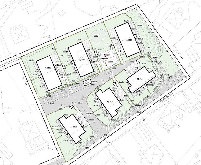
Så här ser planskissen ut för det planerade bostadsområdet:
Det finns många ritningar i bygglovsansökan och de är enligt vad jag kan se mycket professionella. Det som får mig och andra att fundera, det är höjdförhållandena i området.
Det torde bli tämligen mycket berg som ska sprängas och forslas bort för att husen ska kunna byggas. Blir det något kvar av berget, och skogen, och hur kommer de andra husen i området, som ligger vid “samma berg”, att påverkas?
Många grannar är bekymrade för detta, inte bara de som har bergvärme. Hur sprängningarna påverkar grannhusen vet nog ingen i nuläget, men man får förmoda att experterna vet hur det ska gå till.
En förutsättning för att bygglov ska ges är att det finns VA-anslutning för flerbostadshusen på tomten. Och det ska kommunen ordna, eller i varje fall vara på det klara med hur det ska se ut, innan bygglov kan beviljas. En VA-utredning har gjorts (klar 26 mars). Det tycks dock inte helt enkelt att lösa t ex dagvattenfrågan:
“Tomten är högt belägen inom närområdet och avrinning sker i alla väderstreck till intilliggande tomter. Det mesta av tomten lutar åt sydöst där det finns en befintlig väg, Rostvägen, som det ser ut som att dagvattnet rinner över och in på tomter belägna på andra sidan vägen.”
Fastigheterna kring området Blåsut 2:18 ligger bara några stenkast från Kindblomsvägen. Det finns fastigheter som har drabbats av översvämning i källare sedan man skövlade skogen kring Kindblomsvägen. Vad händer med fastigheterna kring Rostvägen? Det ges dock förslag på lösningar och området kommer att anslutas till kommunens VA-nät. Det lär också innebära en del sprängningar, och det ganska snart kan man förmoda. Det sägs att kommunens Tekniska avdelning startar arbetet med en ny VA-ledning vecka 30, alltså denna vecka.
Flera grannar är oroliga för den framtida trafiksituationen. Rostvägen är smal och ytterligare 24 bostäder kommer att generera mer trafik. Dessutom har ju många hushåll flera bilar nu för tiden. Trafiksituationen har dock inte utretts i detta läge. Det är mycket märkligt eftersom marklovet innebär, förutom ändrad marknivå (som jag inte riktigt får grepp om), att en väg ska flyttas. Det är en klar underdrift. Den nuvarande vägen är liten och smal, medan det beviljade marklovet avser en dubbelt så bred väg. Det är alltså inte bara fråga om en ”flytt”.
Idag upptar vägen ca 100 kvm, efter “flytten upptas 300 kvm. Den nya, ”flyttade” vägen blir betydligt bredare än Rostvägen, dvs den ”huvudväg” som tillfartsvägen ansluter till. Denna del av Rostvägen är så smal att två bilar inte kan mötas.
Det är tråkigt att kanske det sista skogsområdet på Blåsut nu ska skövlas och utplånas. Detaljplanen från 1933, som tydligen är från 1930 och justerad 1933, hade inte perspektivet att träd och skog skulle bli en bristvara i våra dagar. Eller att klimatet skulle förändras.
Dessutom är det många på Blåsut som har tillbringat och fortfarande tillbringar tid på berget – och nu kommer det till stor del att försvinna. Det är antagligen också så att värdet på de omkringliggande fastigheterna sjunker som en följd av att det lilla skogsområdet försvinner.
Bostadsplanerna på fastigheten Blåsut 2:18 kommer med all sannolikhet att genomföras. Detaljplanen stadgar att det kan byggas bostäder här och fastigheten ägs redan av Blåsut Utveckling AB. Den köptes den 3 oktober 2022 för 4,2 milj kr från en annan privat ägare. Kommunen har alltså inte ägt denna mark, som var fallet med skogsområdena vid t ex Kindblomsvägen och Mariedal Östra.
Vad det gäller privatpersonen, företaget eller företagen som ska stå för byggnationen finns det sannolikt inget att anmärka.
Sådana här företagsbildningar, och “företagslösningar”, finns det gott om i dagens Sverige. Det är sannolikt också helt lagligt, även om man naturligtvis kan ha synpunkter på de olika uppläggen för att undkomma t ex skatter (utan att påstå att detta är syftet i detta fall). Och eftersom allt är privat, som t ex marken, så kan kommunen knappast göra något annat än att utföra sina skyldigheter.
Jag tror inte ens salamandrarna kan sätta käppar i hjulen för det nya bostadsområdet som bostadsföreningen tycks ha döpt till ”Blåsut Höjd”… Men kanske kan grannarna göra det. Beslutet i byggnadsnämnden om marklov har nämligen överklagats till Länsstyrelsen. Grannarna anför en rad betänkligheter kring processen och besluten.
Men till det det återkommer jag i inlägget ”Marklovet överklagat för Blåsut Höjd (1)”.
==
Blogginlägg om byggnadsplanerna vid Rostvägen på Blåsut:
- ”Oj, är det skog kvar i Blåsut?” – 17 juli 2024
- ”Blåsut Höjd, Rostvägen” – 22 juli 2024
- ”Marklovet överklagat för Blåsut Höjd (1)” – 24 juli 2024
- ”Marklovet överklagat för Blåsut Höjd (2)” – 25 juli 2024
- ”Länsstyrelsens beslut om Blåsut” – 26 juli 2024

Senaste kommentarer